Kiadó lakás Szekszárd 280 000 Ft

Leírás

Az első emeleti lakás 2024-ben készült el, Ytong falazattal, azon 15 cm szigeteléssel.
Fűtése távfűtés egyedi méréssel.
Zárt lépcsőházból érhető el.
A házban 3 lakás található összesen, így nem fogják zavarni a szomszédok.
Kaputelefon rendszer működik a házban.
A lépcsőház világítása mozgásérzékelős.
Ablakok 3 rétegű műanyagok szúnyoghálóval ellátva. Méretük miatt a lakás rendkívül világos.
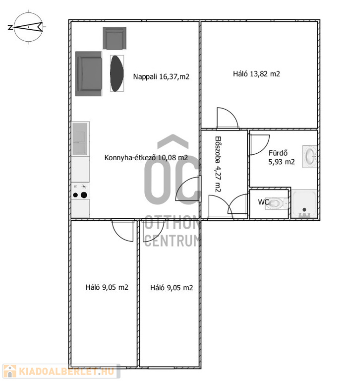
A burkolatok greslap, illetve laminált padló a hálószobákban.
Az egybe nyitott nappali-étkező-konyha bútora méretre készült, beépített konyhagépekkel van ellátva.
A három hálószoba mindegyike külön nyílik.
Nagy teljesítményű klíma gondoskodik a hűtésről a nyári melegben, illetve a fűtést is kiválthatja.
A zuhanyzós fürdőszoba szintén bútorozott.
A képeken látható minden gép, bútor és világítótest a lakás tartozéka.
A kivitelezéskor ügyeltek a minőségi anyaghasználatra, és az esztétikus kialakításra.
Amennyiben szeretne egy kifogástalan állapotú, új építésű lakásban élni a város szívében, akkor megtalálta, amit keresett!
Bolt, óvoda, iskola és minden szolgáltató 3 percen belül elérhető gyalogosan.
A dohányzás és a kisállattartás a lakásban nem megengedett.
Egy havi bérleti díjjal, két havi kaucióval, közjegyző előtti nyilatkozattal azonnal bérbe vehető.

Hívjon, és szívesen megmutatom élőben!

kiadó 2 szoba 2. emelet beépített konyha új építésű városközpont zárt lépcsőház OC U0047975

Lakás részletei

Ár: 280 000 Ft/hónap
Méret: 71 négyzetméter
Azonosító: 11574292
Építőanyag: Kérdezzen rá a hirdetőtől »
Fűtés jellege: Központi (egyedi mérővel)
Ingatlan állapota: Kitűnő
Kilátás: utcai
Egész szobák: 4

Egyéb jellemzők

  • Erkély
  • Garázs
  • Lift
  • Kertkapcsolat
  • Tároló
  • Kocsibeálló

Így keressen kiadó albérletet négy egyszerű lépésben. Csupán 2 perc, kötelezettségek nélkül!

Szűkítse a kiadó albérletek
listáját
Válassza ki a megfelelő
kiadó albérletet
Írjon a hirdetőnek
Várjon a visszahívásra