Kiadó lakás Eger 170 000 Ft

Leírás

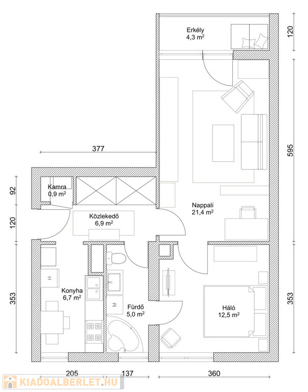
Hosszútávra kiadó Egerben, belváros közeli zöldövezetben (Remenyik Zsigmond utcában), 2. emeleti, erkélyes, bútorozott, gépesített, felújított, nagy tárolókapacitású 54 m²-es lakás.

• 2 szoba, egymásból nyílnak (alaprajzi elrendezés a képek között).
• Kialakított home office sarok.
• Lift nincs.
• Új, korszerű külső nyílászárók, felújított parketta.
• Gépesítés/felszereltség: TV, új gáztűzhely, mosógép, hűtő, mikró.
• Nagy tárolókapacitás, külön spájz.
• A társasház hőszigetelt, lépcsőháza zárt, műanyag nyílászárókkal.
• A társasház előtt ingyenes parkolási lehetőség.
• Eger kedvelt részén helyezkedik el: 10 perc séta a belváros, a Népkert, a sportpálya és a strand; 15 perc a pláza, az autóbusz-állomás, a vasútállomás, Líceum 10perc, egyetem B-épülete 12 perc.
• A közelben: gyógyszertár, boltok, zöldséges, szépségszalonok, kerékpárbolt.
• Fűtés: gázkonvektor (konvektoros fűtés).
• Maximum 2 fő részére kiadó.
• Dohányzás az erkélyen megengedett.
• Minimum bérleti idő: 1 év.

Bérleti díj: 170.000 Ft/hó + rezsi

Rezsi:
– közös költség: 19 420 Ft (hideg víz, szemétdíj, lépcsőház takarítás, közös áramhasználat)
– áram: fogyasztás alapján fizetendő (kb. 6500 Ft)
– gáz: konvektoros, fogyasztás alapján fizetendő (kb. 5500 Ft)

Költözés feltételei:
– közjegyzői nyilatkozat vállalásával
– jövedelemigazolás
– 2 havi kaució

Érdeklődés: írásban: [email protected] vagy telefon: +36 20/269-3890

Lakás részletei

Ár: 170 000 Ft/hónap
Méret: 54 négyzetméter
Azonosító: 11603538
Cím: Remenyik Zsigmond utca
Építőanyag: Kérdezzen rá a hirdetőtől »
Ingatlan állapota: Kérdezzen rá a hirdetőtől »
Egész szobák: 2

Térkép


Így keressen kiadó albérletet négy egyszerű lépésben. Csupán 2 perc, kötelezettségek nélkül!

Szűkítse a kiadó albérletek
listáját
Válassza ki a megfelelő
kiadó albérletet
Írjon a hirdetőnek
Várjon a visszahívásra