Kiadó családi ház Budapest II. ker 2 480 Euro

Leírás

P21548

II. Pálvölgy csendes mellékutcájában panorámás családi ház

Pálvölgyben kiadó egy déli tájolású 1991-ben épült, folyamatosan karbantartott családi ház.

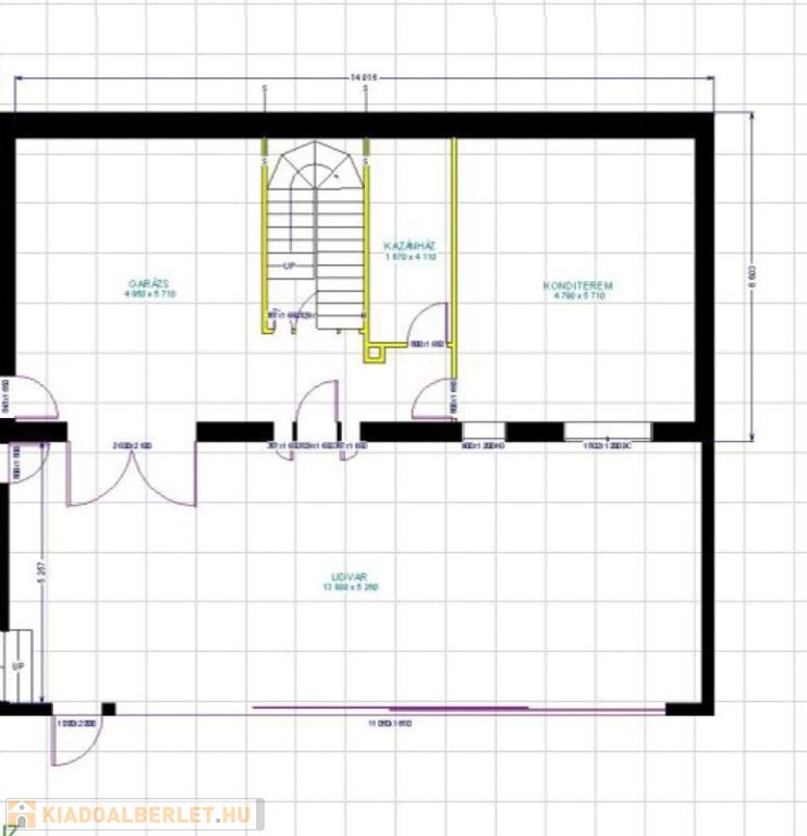
A 3 szintes házban az alsó szinten van garázs, a kiszolgáló helyiségek és egy szoba
A kertszinten kertkapcsolatos panorámás nappali mellett konyhát, étkezőt, dolgozórész és fürdőszoba van, az emeleten pedig két hálószoba és egy fürdőszoba.
A házban 3 gázóra, 3 vízóra és 2 villanyóra található.

További extrák: központi porszívó, kandalló, automata öntözőrendszer, 2x6 kamerás videó rögzítő biztonsági rendszer, automata toló és Hörmann garázskapu.

A környék infrastruktúrája kiváló. Közelben található a Rózsadomb Center üzletközpont, benne Spar, gyógyszertár, DM, éttermek, a ház közelében több óvoda és iskola, többek közt nemzetközi angol iskola a British School.

* utcaszint 84 m2: szoba, fürdőszoba, kazánház, garázs,
* emelet - kertszint 70 m2: terasz- és kertkapcsolatos panorámás nappali, konyha-étkező, dolgozószoba, fürdőszoba, előszoba, erkély
* tetőtér 70 m2: 2 hálószoba, fürdőszoba, közlekedő, lépcsőház, terasz

További képek, részletes leírás megtekintéséhez másolja be az alábbi hivatkozást böngészőjének címsorába: www.ingatlanonki.hu/21548

Családi ház részletei

Ár: 2 480 Euro/hónap
Méret: 224 négyzetméter
Azonosító: 11558153
Irodai azonosító: P21548
Cím: 1025 Budapest
Telek: 720 négyzetméter
Ingatlan állapota: Átlagos
Jelleg: családi ház
Építőanyag: Tégla
Fűtés jellege: Cirkó
Fűtés módja: Gáz
Kor: 21-50 éves
Szintek száma: 2 szint
Egész szobák: 4

Egyéb jellemzők

  • Csatorna

Így keressen kiadó albérletet négy egyszerű lépésben. Csupán 2 perc, kötelezettségek nélkül!

Szűkítse a kiadó albérletek
listáját
Válassza ki a megfelelő
kiadó albérletet
Írjon a hirdetőnek
Várjon a visszahívásra